マンション|伊丹市
アスト瑞穂
| 所在地 | 伊丹市瑞穂町6丁目 |
|---|---|
| 土地権利 | 所有権 |
| 用途地域 | |
| 築年月 | 平成4年2月 |
| 管理費等 | |
| 専有面積 | ㎡ |
| バルコニー・庭 |
アズ・リル・シャンティ
| 価格 | 1,500万円 |
|---|---|
| 所在地 | 伊丹市鋳物師3丁目 |
| 階数 | 4階部分 |
| 土地権利 | 所有権 |
| 用途地域 | 第1種住居地域 |
| 築年月 | 平成15年6月 |
| 管理費等 | 管理費 4,700円 修繕積立金 4,040円 |
| 専有面積 | 64.02㎡ |
| バルコニー・庭 | 9.51㎡ |
エーベル伊丹シティオ
| 価格 | 1,380万円 |
|---|---|
| 所在地 | 伊丹市北本町3丁目 |
| 築年数 | 平成8年7月 |
| 交通 | JR福知山線伊丹駅徒歩11分 |
| 管理費等 | 管理費15,940円、修繕積立金13,500円 |
| 駐車場 | 空きあり 月額9000円~ |
| 方向 | 南西角住戸 |
| 階数 専有面積 | 7階部分 63.01㎡(壁芯) |
| 構造 | RC造8階建7階部分 |
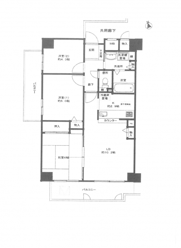
アグレスト昆陽池西
| 価格 | 680万円 |
|---|---|
| 基本情報 | 住居表示/伊丹市中野北1丁目 専有面積/壁芯62.42㎡、バルコニー/9.64㎡ 築年数/1997年4月、構造/RC造4階建 2階部分、総戸数/30戸 土地権利/定期借地、管理形態/全部委託、管理方式/日勤 用途地域/1種中高、取引形態/仲介 |
| 費用 | 管理費 8,200円/月 修繕積立金 7,200円/月 地代 18,900円/月 駐車場 空有 15,000円/月 |
| チェックポイント | バイク置き場(500円/月)、駐輪場有(無料)、バリアフリー、温水洗浄便座、シャワー付洗面台、3口コンロ、システムキッチン、全室収納有、複層ガラス、モニター付きオートロック、宅配BOX、桜台小・天神川中 |
























